进入框架页面

单片机教学(2)

单片机的内部、外部结构(一)

一、单片机的外部结构

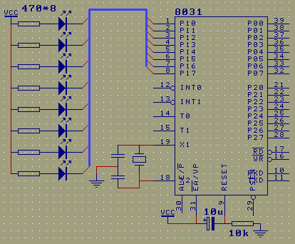
拿到一块芯片,想要使用它,首先必须要知道怎样连线,我们用的一块称之为89C51的芯片,下面我们就看一下如何给它连线。 1、 电源:这当然是必不可少的了。单片机使用的是5V电源,其中正极接40引脚,负极(地)接20引脚。 2、 振蒎电路:单片机是一种时序电路,必须提供脉冲信号才能正常工作,在单片机内部已集成了振荡器,使用晶体振荡器,接18、19脚。只要买来晶振,电容,连上就可以了,按图1接上即可。 3、 复位引脚:按图1中画法连好,至于复位是何含义及为何需要复要复位,在单片机功能中介绍。 4、 EA引脚:EA引脚接到正电源端。 至此,一个单片机就接好,通上电,单片机就开始工作了。

图1

二、 任务分析

我们的第一个任务是要用单片机点亮一只发光二极管LED,显然,这个LED必须要和单片机的某个引脚相连,否则单片机就没法控制它了,那么和哪个引脚相连呢?单片机上除了刚才用掉的5个引脚,还有35个,我们将这个LED和1脚相连。(见图1,其中R1是限流电阻)

按照这个图的接法,当1脚是高电平时,LED不亮,只有1脚是低电平时,LED才发亮。因此要1脚我们要能够控制,也就是说,我们要能够让1引脚按要求变为高或低电平。即然我们要控制1脚,就得给它起个名字,总不能就叫它一脚吧?叫它什么名字呢?设计51芯片的INTEL公司已经起好了,就叫它P1.0,这是规定,不可以由我们来更改。

名字有了,我们又怎样让它变'高'或变'低'呢?叫人做事,说一声就可以,这叫发布命令,要计算机做事,也得要向计算机发命令,计算机能听得懂的命令称之为计算机的指令。让一个引脚输出高电平的指令是SETB,让一个引脚输出低电平的指令是CLR。因此,我们要P1.0输出高电平,只要写SETB P1.0,要P1.0输出低电平,只要写 CLR P1.0就可以了。

现在我们已经有办法让计算机去将P10输出高或低电平了,但是我们怎样才能计算机执行这条指令呢?总不能也对计算机也说一声了事吧。要解决这个问题,还得有几步要走。第一,计算机看不懂SETB CLR之类的指令,我们得把指令翻译成计算机能懂的方式,再让计算机去读。计算机能懂什么呢?它只懂一样东西——数字。因此我们得把SETB P1.0变为(D2H,90H ),把CLR P1.0变为 (C2H,90H ),至于为什么是这两个数字,这也是由51芯片的设计者--INTEL规定的,我们不去研究。第二步,在得到这两个数字后,怎样让这两个数字进入单片机的内部呢?这要借助于一个硬件工具"编程器"。

我们将编程器与电脑连好,运行编程器的软件,然后在编缉区内写入(D2H,90H)见图2,写入……好,拿下片子,把片子插入做好的电路板,接通电源……什么?灯不亮?这就对了,因为我们写进去的指令就是让

图2

P10输出高电平,灯当然不亮,要是亮就错了。现在我们再拨下这块芯片,重新放回到编程器上,将编缉区的内容改为(C2H,90H),也就是CLR P1.0,写片,拿下片子,把片子插进电路板,接电,好,灯亮了。因为我们写入的()就是让P10输出低电平的指令。这样我们看到,硬件电路的连线没有做任何改变,只要改变写入单片机中的内容,就可以改变电路的输出效果。

三、单片机内部结构分析

我们来思考一个问题,当我们在编程器中把一条指令写进单片要内部,然后取下单片机,单片机就可以执行这条指令,那么这条指令一定保存在单片机的某个地方,并且这个地方在单片机掉电后依然可以保持这条指令不会丢失,这是个什么地方呢?这个地方就是单片机内部的只读存储器即ROM(READ ONLY MEMORY)。为什么称它为只读存储器呢?刚才我们不是明明把两个数字写进去了吗?原来在89C51中的ROM是一种电可擦除的ROM,称为FLASH ROM,刚才我们是用的编程器,在特殊的条件下由外部设备对ROM进行写的操作,在单片机正常工作条件下,只能从那面读,不能把数据写进去,所以我们还是把它称为ROM。

 

 


以上资料来自于互联网!编辑整理:五一电子加油站;网址:http://51dz.com
欢迎光临五一电子商城!免费学习电子技术,面向全国邮购电子元件、实验套件!